Fontosabb adatok az ingatlanról

Az ingatlan Gyömrőn található.

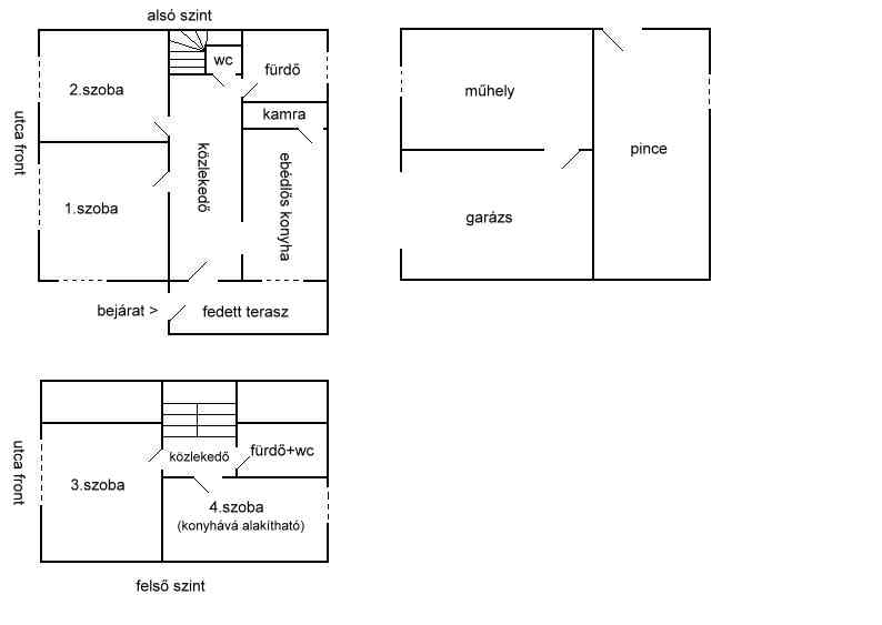
     Lakóterület nagysága : 120 nm (alsó szint: 80 nm felső szint: 40 nm)
   
     Telek nagysága : 220 nöl
 
     Szobák száma  : 4  ( 2 szoba alsó szint, 2 szoba felső szint)
 
     Egyéb helyiségek  :  alsó szint: fürdő, wc, ebédlős konyha, kamra, közlekedő
                                                          :  felső szint : közlekedő,  fürdő+wc 

     Burkolatok 

 : alsó szobák: parketta, felső szobák: padlószőnyeg, járólap
                                                          : a többi helység : járólap
     Melléképületek   : - 
    
     Fűtés  : gázkonvektor
 
     Közmű   : teljes 
 
     Közös költség  : -
  
     Műszaki állapot   :rendezett (13 éves az épület)

 

Irányára : 18,7 mFt

 
 

Vissza